El reconocido estudio de arquitectura deja su huella con esta obra emblemática que fusiona residencias de alta gama y locales comerciales en Puerto Madero
En colaboración con los arquitectos Robirosa/Pasinato/Beccar Varela y Donaldson/Damonte, el estudio ha creado una destacada obra residencial y comercial de alta gama ubicada en Juana Manso 153, en el prestigioso barrio de Puerto Madero.
El Forum Puerto Madero, construido entre 2005 y 2007, se destaca por su diseño vanguardista y su integración con el entorno. Con una superficie de 43.000 metros cuadrados, el edificio ha sido aclamado como un ejemplo sobresaliente de arquitectura contemporánea en la ciudad.



Uno de los aspectos más destacados del proyecto es su enfoque en la resolución de la esquina, un desafío inherente a este tipo de construcciones. En lugar de evitarlo, el equipo de Mc Cormack Asociados decidió enfrentarlo y convertirlo en el elemento central y distintivo del edificio. El Forum Puerto Madero se presenta como una solución única y global, reafirmando la intención urbanística original de crear una manzana clásica en el sector.
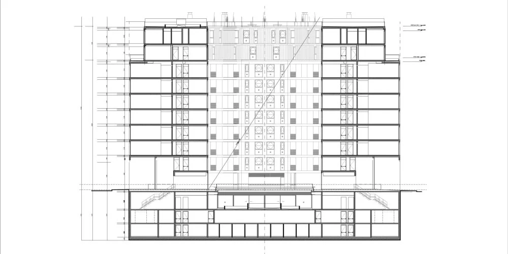
El edificio destaca por su imponente presencia y su distribución interna bien planificada. En la planta baja, se encuentran locales comerciales que interactúan con la avenida Juana Manso y el Museo Fortabat, aprovechando al máximo las posibilidades de conexión con el entorno. Los accesos vehiculares y peatonales están estratégicamente ubicados, facilitando la movilidad dentro del edificio.



En los pisos superiores, del primero al séptimo, se ubican las exclusivas residencias de alta gama. Estas viviendas se caracterizan por su diseño moderno y su amplitud, con espacios sociales integrados que se conectan de manera flexible con la cocina y los balcones. Las viviendas se distribuyen en diferentes configuraciones, incluyendo esquinas con vistas panorámicas a los diques y el río, unidades apaisadas que maximizan la exposición al sol y unidades pasantes con doble vista hacia el exterior y el patio interior. Además, el octavo y noveno piso albergan dúplex con acceso a terrazas privadas, ofreciendo vistas excepcionales de la ciudad.




La fachada del Forum Puerto Madero refleja la diversidad de su programa arquitectónico y la elección de materiales nobles y duraderos. En la planta baja, se destacan los amplios ventanales de los locales comerciales y los accesos de doble altura. En los niveles superiores, las vigas perimetrales de hormigón a la vista y las placas de travertino en la fachada ventilada brindan una estética elegante y moderna.





